GRAD/OPĆINA: Trnje NASELJE: Sigečica
Odličan, novouređen i lako prilagodljiv prostor na 7. katu poslovne zgrade u Radničkoj ulici - centralnoj poslovnoj zoni Zagreba. Zgrada je otvorena 0-24h te se u njoj nalaze IT tvrtke, javni bilježnik, PBZ banka, kafić...
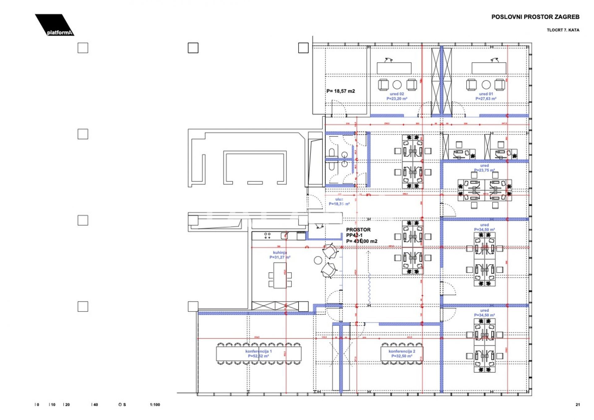
Prostor je kompletno adaptiran i opremljen 2025.godine, prostire se na 430m2, te se trenutno sastoji od: velikog open space prostora, 6 uredskih prostorija, sobe za sastanke, nove ugrađene kuhinje i toaleta. Lako je prilagodljiv budućim zakupcima, te se može pregrađivati po njihovim željama.
Nalazi se na 7. katu zgrade, ima velike prozore s otvorenim urbanim pogledom na poslovnu zonu. Okrenut je na 3 strane svijeta te cijeli dan obiluje svjetlom.
Postoji mogućnost otkupa postojećeg namještaja.
Iza zgrade se nalazi parking.
Cijena zakupa iznosi 20 EUR/m2 + režijski troškovi + zajednički troškovi održavanja + PDV.
AGENCIJSKA PROVIZIJA IZNOSI 1 MJESEČNU ZAKUPNINU + PDV.















