GRAD/OPĆINA: Gornji Grad - Medveščak NASELJE: Centar
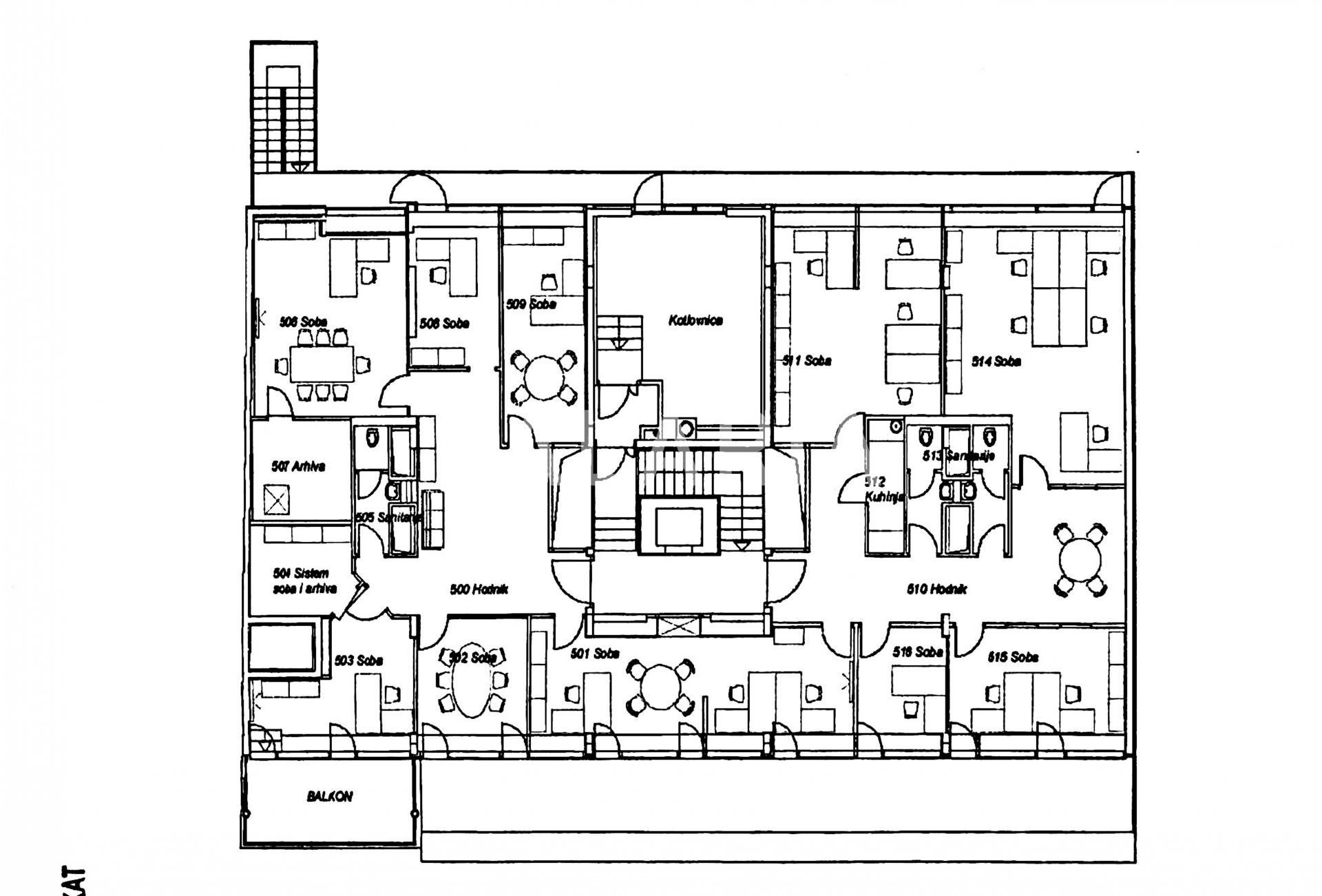
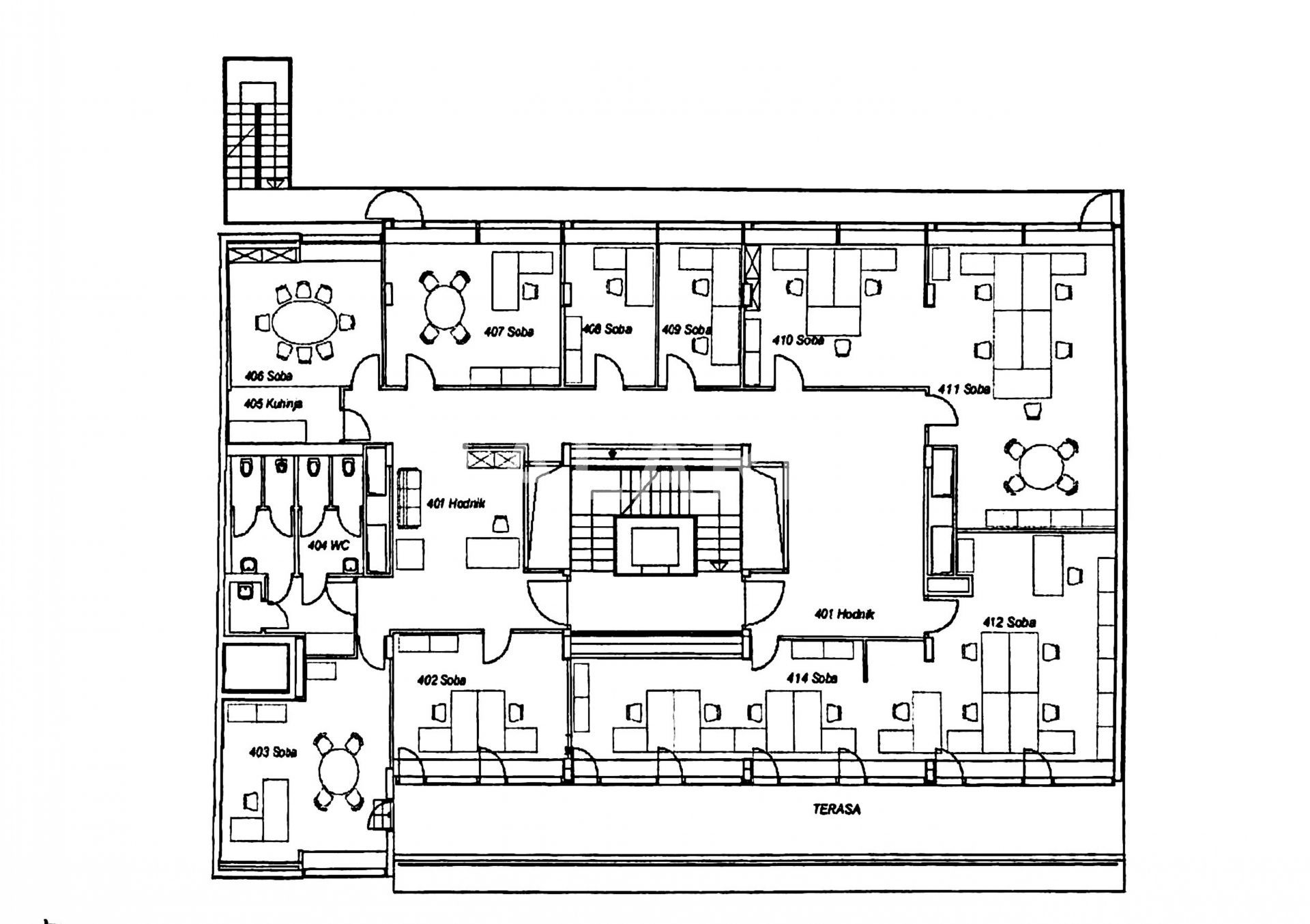
Iznajmljuje se poslovni prostor uredske namjene, ukupne površine 693 m2 raspoređenih na posljednje dvije etaže isključivo poslovne i održavane zgrade. Nalazi se na 4. i 5. katu zgrade s dizalom i ulaznom recepcijom.
Sastoji se od ulaznog prostora, 17 uredskih prostorija, 4 sanitarna čvora, kuhinje s blagovaonicom te 2 terase. Obzirom da se prostor prostire preko pune etaže ima izuzetno puno prozora orijentiranih ka istoku i zapadu. Upravo zbog puno staklenih stijena od zida do zida, prostor je izuzetno tlocrtno prilagodljiv potrebama budućeg zakupnika, a svi zidovi u prostoru su pregradni pa se može lako dobiti i open space koncept poslovanja. Sva ulaganja isključivi su trošak budućeg zakupca.
Strogi centar grada, neposredna blizina javnih sadržaja i javnog prijevoza. Postoji mogućnost dodatnog zakupa 6 garažnih parkirnih mjesta.
AGENCIJSKA PROVIZIJA IZNOSI JEDNU MJESEČNU ZAKUPNINU + PDV.











